-
1360 Localité
-
176 m²
-
4 chambre(s)
-
2 salle(s) d'eau
-
0 garage(s) / parking(s)
415000 €
Nouveau
Informations
Prix : 415000 €
Nombre de Chambre(s) : 4
Nombre de salle(s) de bain : 2
Nombre de salle(s) de douche : 0
Garage(s) / Parking(s) : 0
Adresse : 1360 PERWEZ
Superficie totale : 176 m²
Superficie living : 34 m²
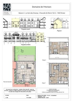
"LE DOMAINE DE L'HORIZON"
12 appartements et 4 maisons idéalement situés à deux pas du centre de Perwez et ses facilités.
Au RDV : PEB A, espaces et belles finitions.
Cuisine haut de gamme offerte et conditions spéciales été.
Magnifique maison neuve 4 chambres (M4) de 176m² avec terrasse et jardin.
Magnifiques finitions.
COMPOSITION:
Rez-de-chaussée:
- Hall d'entrée
- WC avec lave mains
- Séjour de +/-35m²
- Cuisine équipée ouverte de +/-8.5m²
- Buanderie
Terrasse de +/- 17m² et jardin de +/-136m² orientés Nord-Ouest
Etage 1:
- Hall de nuit
- 3 chambres de +/-12, 13 et 15m²
- Salle d'eau (bain, douche, double lavabo)
- WC séparé
Etage 2:
- Hall
- Chambre de +/-19m²
- Salle de bains (bain, lavabo et WC)
- Local technique/grenier
Ensemble de 2 emplacements de parking extérieurs pour 25.000€
FINITIONS:
- Châssis PVC Double vitrage
- Chauffage individuel au gaz
- Ventilation mécanique double flux
- Grand carrelage et LVT
- Très bonne isolation thermique et acoustique
- Peinture : couche de propreté
Vente soumise à la TVA (construction: 21% et terrain: 12.5%)
Frais de raccordements en sus
MAISON DISPONIBLE:
A l'acte
INFORMATIONS:
RDV et Informations supplémentaires (plans, cahier des charges, ...): Audrey Rolin 0473/84.76.66
Document informatif non contractuel.
Visite sur place possible dès maintenant, contactez nous!
PEB
Mentions légales
Droit de préemption possible : Pas encore demandé(e)
Autorisation de lotissement : Pas encore demandé(e)
Citation pour infraction urbanistique : Pas encore demandé(e)
Permis de bâtir obtenu : Pas encore demandé(e)
PEB : 72 kWh/m²
E totale : 12328 kWh/an
Code Unique : 20251006502149
Découvrez nos autres biens
-
104 m²
-
1 salle(s) d'eau
-
2 chambre(s)
-
1 garage(s) / parking(s)
LOUVAIN-LA-NEUVE
Sympathique appartement duplex de +/- 104 m², 2 chambres, terrasse et emplacement de parking intérieur. A vi ...
Option
380000 €
-
60 m²
-
1 salle(s) d'eau
-
2 chambre(s)
-
0 garage(s) / parking(s)
LOUVAIN-LA-NEUVE
Sympathique appartement de +/- 60 m² , situé au 2 ème étage, 2 chambres et cave. A visiter sans tarder !!! ...
Nouveau
298000 €
-
112 m²
-
1 salle(s) d'eau
-
2 chambre(s)
-
1 garage(s) / parking(s)
LOUVAIN-LA-NEUVE
Exceptionnel appartement de 112 m² , 2 chambres, terrasse, emplacement de parking intérieur et cave. A visi ...
Option
550000 €
-
75 m²
-
1 salle(s) d'eau
-
2 chambre(s)
-
1 garage(s) / parking(s)
OTTIGNIES-LOUVAIN-LA-NEUVE
A 2 pas du Douaire, agréable appartement 2 chambres de ±82m² avec terrasse situé au 3ème étage. Appartement ...
Vendu
295000 €
-
125 m²
-
2 salle(s) d'eau
-
3 chambre(s)
-
1 garage(s) / parking(s)
GREZ-DOICEAU
Dans une rue sans issue, agréable maison 3 chambres de +/-125m² + garage sur +/-18 ares. Maison habitable de p ...
Option
425000 € (Prix minimum)
-
150 m²
-
1 salle(s) d'eau
-
4 chambre(s)
-
1 garage(s) / parking(s)
GREZ-DOICEAU
Agréable maison 4 chambres de +/-240m² avec caves et garage sur +/-15 ares. Maison à remettre au gout du jour ...
Vendu
400000 € (Prix minimum)
-
75 m²
-
1 salle(s) d'eau
-
1 chambre(s)
-
0 garage(s) / parking(s)
OTTIGNIES
Appartement duplex de +/- 75 m², chambre + espace bureau, terrasse et 1 emplacement de parking extérieur priv ...
Nouveau
310000 €
-
75 m²
-
1 salle(s) d'eau
-
1 chambre(s)
-
0 garage(s) / parking(s)
OTTIGNIES
Appartement duplex de +/- 75 m², 1 chambre + espace bureau, terrasse et 1 emplacement de parking extérieur pr ...
Nouveau
295000 €
-
95 m²
-
2 salle(s) d'eau
-
2 chambre(s)
-
0 garage(s) / parking(s)
OTTIGNIES
Appartement de +/- 95 m², 2 chambres, terrasses s/o et 2 emplacements de parkings extérieurs privatifHall d'e ...
Nouveau
360000 €
-
55 m²
-
1 salle(s) d'eau
-
1 chambre(s)
-
0 garage(s) / parking(s)
OTTIGNIES
Appartement 1 chambre, véranda , jardin et emplacement de parking extérieur privatif. Hall d'entré avec plac ...
Nouveau
235000 €
-
65 m²
-
1 salle(s) d'eau
-
2 chambre(s)
-
1 garage(s) / parking(s)
WAVRE
A 5 min du centre de Wavre, appartement 2 chambres de +/- 70m² avec terrasse orientée Ouest au 2ème étage. P ...
Option
199900 €
-
125 m²
-
1 salle(s) d'eau
-
4 chambre(s)
-
1 garage(s) / parking(s)
GEMBLOUX
Dans un quartier calme et résidentiel, agréable maison 4 chambres d'une superficie totale de +/-185m² sur 3.16 ...
Vendu
325000 €
